本次為工廠辦公室改造方案,辦公室改造面積700平方,設計師在辦公室改造中,以簡潔、開放、流動為設計理念,目的就是在氛圍上希望營造出完全開放,具有空氣感的流動空間。
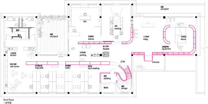
▼工廠辦公室一層平面

▼工廠辦公室二層平面

▼工廠辦公室入口

▼工廠辦公室過道

▼工廠辦公室隔斷

▼工廠辦公室儲藏區

▼工廠辦公室前臺

▼工廠辦公室前臺

▼工廠辦公室辦公區

▼工廠辦公室樓梯口

▼工廠辦公室樓梯

▼工廠辦公室二樓辦公區

▼工廠辦公室二樓辦公區

▼工廠辦公室二樓辦公區

▼工廠辦公室二樓辦公區

▼工廠總經理辦公室

本次工廠辦公室改造方案講解到此結束,設計師在辦公室改造中,首先考慮的是如何讓上下層聯系起來,因此設計一開始氛圍上希望營造出完全開放,具有空氣感的流動空間。
相關推薦
>>>廠房辦公室裝修設計效果圖