下文續(xù)接:青少年活動中心深化設計施工圖(1)
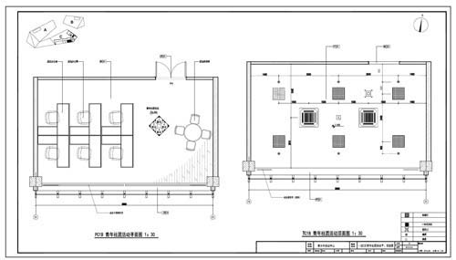
一層C區(qū)青年活動圖紙:
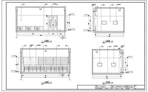
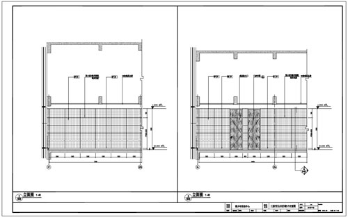
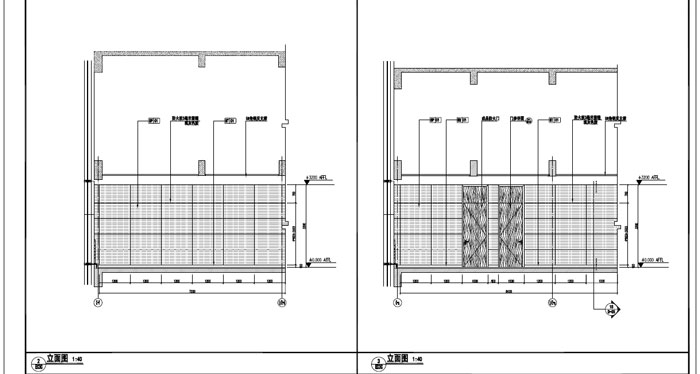
一層C區(qū)青年社團活動1234立面圖

一層C區(qū)青年社團活動平、頂面圖

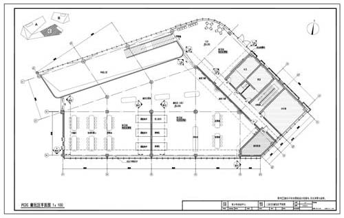
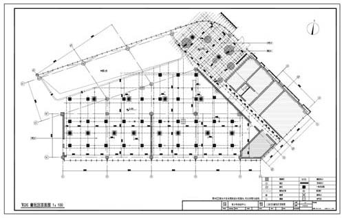
二層C區(qū)童玩區(qū)圖紙:
二層C區(qū)童玩區(qū)平面圖

二層C區(qū)童玩區(qū)頂面圖

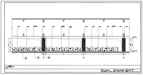
二層C區(qū)童玩區(qū)1/2/3立面圖

二層C區(qū)童玩區(qū)4/5/6立面圖

二層C區(qū)童玩區(qū)7/8立面圖

二層C區(qū)童玩區(qū)9立面圖

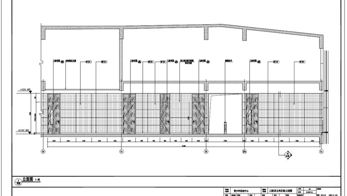
三層C區(qū)立面圖:
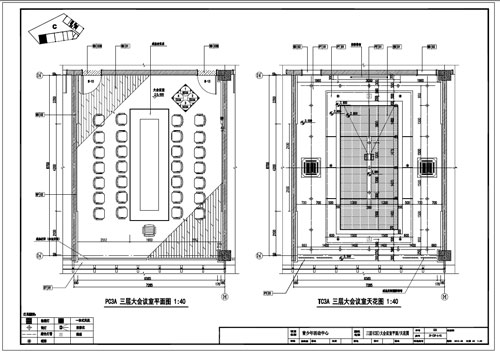
三層C區(qū)大會議室平面/天花圖

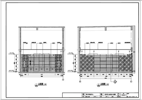
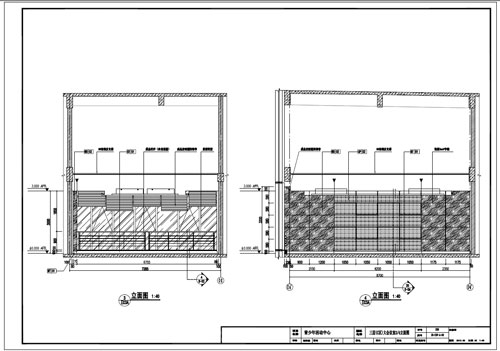
三層C區(qū)大會議室1/2立面圖

三層C區(qū)大會議室3/4立面圖

三層C區(qū)教師辦公室平面/天花圖

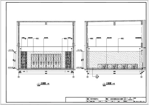
三層C區(qū)教師辦公室1/2立面圖

三層C區(qū)教師辦公室3/4立面圖

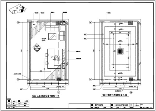
三層C區(qū)主任辦公室平面/天花圖

三層C區(qū)主任辦公室1/2/3/4立面圖

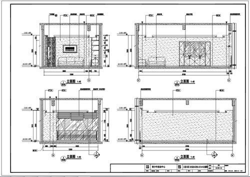
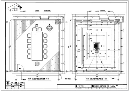
三層C區(qū)小會議室平面/天花面

三層C區(qū)小會議室1/2/3/4立面圖

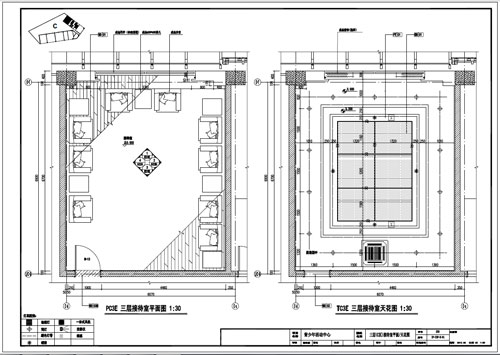
三層C區(qū)接待室平面/天花圖

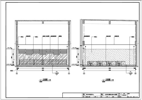
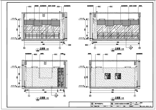
三層C區(qū)接待室1/2立面圖

三層C區(qū)接待室3/4立面圖

三層C區(qū)公共區(qū)域圖紙:
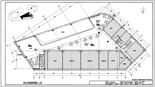
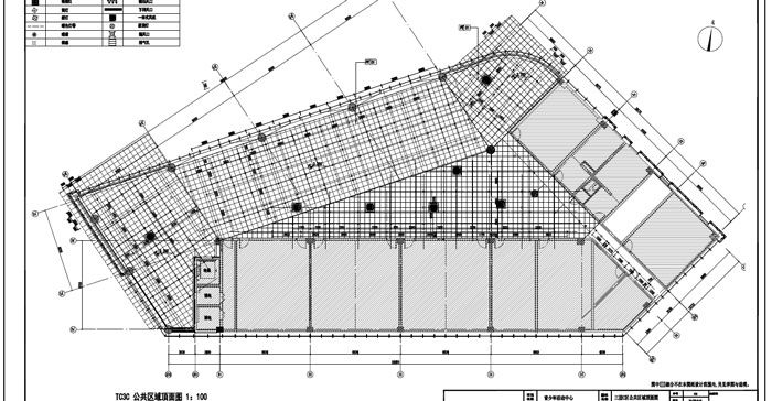
三層C區(qū)公共區(qū)域平面圖

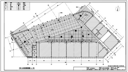
三層C區(qū)公共區(qū)域頂面圖

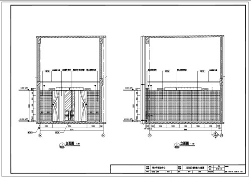
三層C區(qū)公共區(qū)域1立面圖

三層C區(qū)公共區(qū)域2/3立面圖

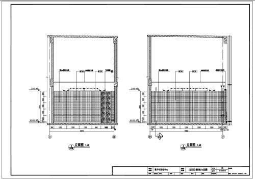
三層C區(qū)公共區(qū)域4立面圖(1)

三層C區(qū)公共區(qū)域4立面圖(2)

三層C區(qū)公共區(qū)域5立面圖

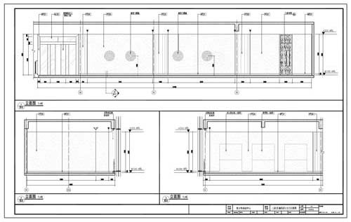
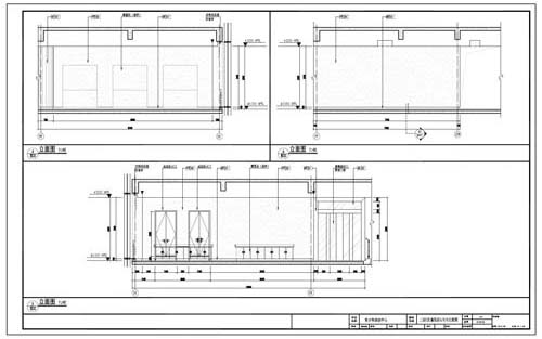
新風機房與強弱電間施工圖:
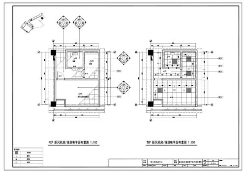
新風機房/強弱電平面/吊頂布置圖

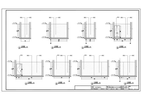
新風機房/強弱電1/2/3/4/5/6/7/8立面圖
.
新風機房/強弱電9/10/11/12/13/14/15/16立面圖

門表圖:
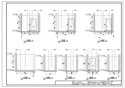
門表圖1

門表圖2
